2 готовых размера: 54 м² и 80 м²
Арки из сосны и ели — прочная несущая конструкция
Выдерживает высокие снеговые и ветровые нагрузки
Утепление ППУ 35 плотности
Дом под ключ, фиксированная цена
СОВРЕМЕННЫЙ КАРКАСНЫЙ ДОМ
ПОД КЛЮЧ ОТ 2 160 000 ₽
Энергоэффективные двухэтажные дома из хвойных пород:
проектирование, производство и строительство от 1 месяца.
2 готовых размера: 54 м² и 80 м²
Арки из сосны и ели — прочная несущая конструкция
Выдерживает высокие снеговые и ветровые нагрузки
Утепление ППУ 35 плотности
Дом под ключ, фиксированная цена
СОВРЕМЕННЫЙ КАРКАСНЫЙ ДОМ
ПОД КЛЮЧ
ОТ 2 160 000 ₽
ТАТ-АРКА.РФ
Энергоэффективные двухэтажные дома из хвойных пород: проектирование, производство и строительство от 1 месяца.
Арочный каркасный дом — это сочетание современной архитектуры и надёжной каркасной технологии строительства. Арочная форма не только визуально выразительна, но и обеспечивает повышенную прочность, устойчивость к нагрузкам и высокую энергоэффективность.

Эта концепция идеально подходит для:
Постоянного проживания
Загородного дома
Дома отдыха и глэмпинга
О ДОМЕ
Арочный каркасный дом нового поколения
2
этажа
от 1
Инвестиции и аренды
месяца
МОДЕЛИ ДОМОВ
2 размера. 1 концепция. Полностью готов для жизни
Дом 6х6
Двухэтажный дом — 54 м²
Дом 6х9
Просторный двухэтажный дом — 80 м²
Небольших семей, дачи, сдачи в аренду
габариты
6х6 м
ИДЕАЛЬНО ДЛЯ
площадь
54 м²
этажность
2 этажа
Семей с детьми, постоянного проживания, инвестиций
габариты
6х9 м
ИДЕАЛЬНО ДЛЯ
площадь
80 м²
этажность
2 этажа
ГАЛЕРЕЯ И ПЛАНИРОВКИ
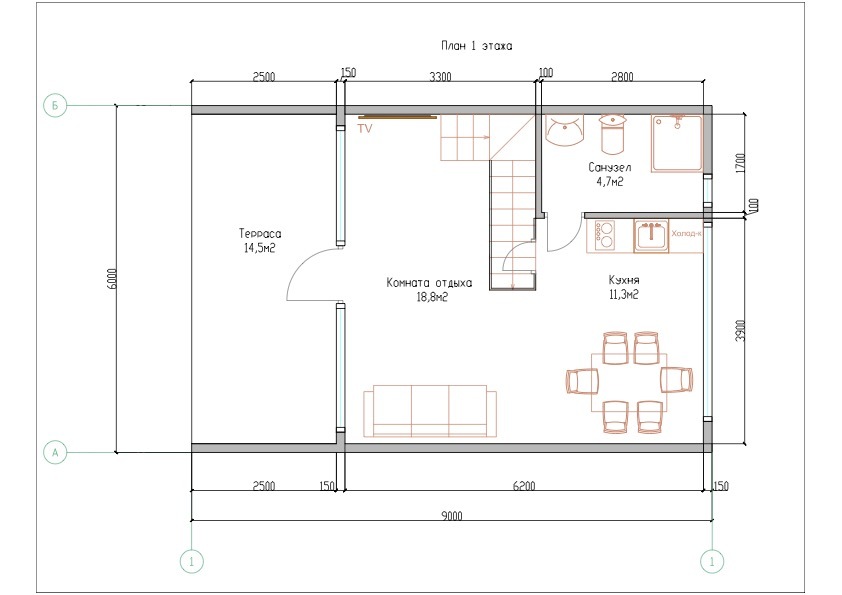
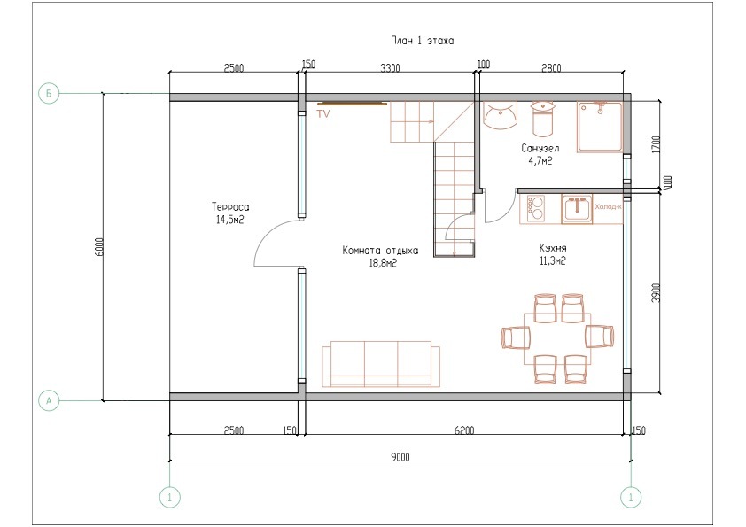
Проект дома 6х6 - 54 м²
Жилая площадь: 54 м²
Габариты дома: 6 × 6 м
Фундамент: свайно-винтовой. Длина свай определяется по результатам геологических изысканий вашего участка.
Кровля: мягкая кровля (цвет — серый).
Внешняя отделка: имитация бруса.
Коммуникации (опционально):
  • Канализация (септик, разводка и монтаж труб по дому).
Электроснабжение (опционально):
  • Разводка электрики по дому
  • Электрощит с автоматами
  • Заземление
  • Наружное освещение
Дополнительно:
  • Полная обработка пиломатериалов защитными и антисептическими составами.
Возможно строительство совмещённого дома с баней или сауной под одной крышей.
Строим как классические А-образные дома, так и дома с аттиковыми стенами.
Наши преимущества
✓ Поэтапная оплата
✓ Высокие темпы строительства (в среднем — 2 месяца)
✓ Собственные строительные бригады
✓ Квалифицированные специалисты с профессиональным инструментом
✓ Технический надзор на всех этапах строительства
✓ Стройматериалы на выбор от проверенных поставщиков
✓ Пиломатериалы высшего качества камерной сушки
✓ Круглосуточное видеонаблюдение на объекте
✓ 100% обработка материалов антисептическими и защитными составами
✓ Гарантия — 5 лет
✓ Опыт работы более 8 лет
✓ Возможность строительства в других регионах РФ
ГАЛЕРЕЯ И ПЛАНИРОВКИ
Проект дома 6х9 - 80 м²
Жилая площадь: 80 м²
Габариты дома: 6 × 9 м
Фундамент: свайно-винтовой. Длина свай определяется по результатам геологических изысканий вашего участка.
Кровля: мягкая кровля (цвет — серый).
Внешняя отделка: имитация бруса.
Коммуникации (опционально):
  • Канализация (септик, разводка и монтаж труб по дому).
Электроснабжение (опционально):
  • Разводка электрики по дому
  • Электрощит с автоматами
  • Заземление
  • Наружное освещение
Дополнительно:
  • Полная обработка пиломатериалов защитными и антисептическими составами.
Возможно строительство совмещённого дома с баней или сауной под одной крышей.
Строим как классические А-образные дома, так и дома с аттиковыми стенами.
Наши преимущества
✓ Поэтапная оплата
✓ Высокие темпы строительства (в среднем — 2 месяца)
✓ Собственные строительные бригады
✓ Квалифицированные специалисты с профессиональным инструментом
✓ Технический надзор на всех этапах строительства
✓ Стройматериалы на выбор от проверенных поставщиков
✓ Пиломатериалы высшего качества камерной сушки
✓ Круглосуточное видеонаблюдение на объекте
✓ 100% обработка материалов антисептическими и защитными составами
✓ Гарантия — 5 лет
✓ Опыт работы более 8 лет
✓ Возможность строительства в других регионах РФ
КОМПЛЕКТАЦИЯ
Дом под ключ — без скрытых расходов
Каркас и арочная конструкция
Наружная отделка
Кровля
Окна и двери
Утепление ППУ (плотность 35)
Черновая внутренняя отделка
Подготовка под инженерные системы
Галерея домов
ПЛАНИРОВКИ
КОНСТРУКЦИЯ
УТЕПЛЕНИЕ
ПОДРОБНОСТИ
Всё о наших домах
Продуманные планировки для комфортной жизни
Каждый дом имеет функциональную планировку с чётким разделением общественных и приватных зон. Планировки могут быть адаптированы под ваши конкретные потребности.

В презентации представлены: поэтажные планы, фотографии построенных домов и процессов строительства домов.
ПОДРОБНОСТИ
Всё о наших домах
Высокие снеговые нагрузки
Сильные ветра
Долгосрочную эксплуатацию
АРОЧНАЯ СИСТЕМА
Надёжная конструкция. Натуральные материалы.
Арочная форма равномерно распределяет нагрузки по всей конструкции, значительно увеличивая долговечность. Арки изготовлены из хвойных пород — сосны и ели. Это сборная несущая конструкция, рассчитанная на:
ПЛАНИРОВКИ
КОНСТРУКЦИЯ
УТЕПЛЕНИЕ
ПОДРОБНОСТИ
Всё о наших домах
Высокая теплоизоляция при минимальной толщине
Отсутствие мостиков холода
Влагостойкость
Отсутствие усадки со временем
Снижение затрат на отопление
ПРЕИМУЩЕСТВА ППУ:
Тёплый дом с минимальными теплопотерями.
Дом утеплён пенополиуретаном (ППУ), плотность 35 — одним из самых энергоэффективных утеплителей в строительстве.
ПЛАНИРОВКИ
КОНСТРУКЦИЯ
УТЕПЛЕНИЕ
СРОКИ
Быстрое производство и монтаж
Срок производства дома — от 1 месяца  (на свайном фундаменте).
04
Финальная проверка, передача ключей и документации
Сдача дома
01
Согласование проекта, адаптация планировки, подготовка документации
Подготовка и проектирование
02
Изготовление арочных элементов и комплектующих на производстве
Производство конструкций
03
Установка фундамента, сборка каркаса, утепление, отделка
Монтаж на участке
Сравнение наших домов с А-фрейм домами.
СРАВНЕНИЕ
Преимущества каркасного дома
Функционал
А-фрейм
Наш дом
Больше полезной площади
Равномерная нагрузка
Сохранение тепла
Гибкость планировки
Современный внешний вид
Часто задаваемые вопросы
Made on
Tilda